Vols viure en un esplèndid habitatge situat al costat de l'Escola Ribas i el col·legi Maristes de Rubí, a dos minuts del Mercat Municipal, en una promoció de només tres habitatges? La immobiliària ORGAN t'ofereix aquest dúplex.
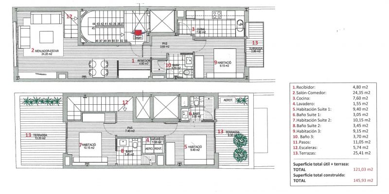
L'habitatge és un dúplex en planta segona, àtic, que compta amb tres habitacions dobles, gran saló menjador de 24,35 m2 amb un total de tres terrasses i un total de tres quartos de bany, comptant en total amb 145.93 m2 construïts (121.03 m2 útils).
Habitació suite de l'àtic dúplex d'ORGAN. FOTO: Cedida
Plànol de l'àtic dúplex de la immobiliària ORGAN. FOTO: Cedida
L'habitatge compta amb sistema integrat de refrigeració, calefacció i aigua calenta sanitària mitjançant aerotèrmia, sistema de bomba de calor d'alta eficiència energètica considerada com a energia renovable i sostenible. Il·luminació mitjançant LED en banys, cuines i passadissos d'habitatges, encastats en fals sostre. La terrassa disposa d'Il·luminació i presa de corrent.
Si desitges viure en aquest àtic dúplex molt a prop del centre de la ciutat i de les principals comunicacions, tens disponible aquest habitatge a la immobiliària ORGAN.
Subscriu-te al butlletí
Facebook
X
Instagram
YouTube
WhatsApp
Telegram
TikTok