El nou edifici de La Unió Santcugatenca ja té forma definida. Dilmé Fabré Torras i Associats SLP ha presentat l'avantprojecte de rehabilitació de l'edifici, després d'haver estat els guanyadors del concurs convocat per l'Ajuntament de Sant Cugat.
Un projecte, La Unió fa la força, que proposa un edifici integrador de funcions i serveis, havent-hi una relació visual i vital entre l'exterior i l'interior de l'edifici. Un edifici que a la planta baixa continuarà presentant el teatre, la Sala Clavé i el pati.
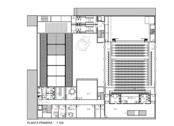
L'arquitecte Xavier Fabré ha explicat que “el pati és bàsic com a punt de trobada, i el teatre havia de ser polivalent per poder acollir altres formats” mentre que la Sala Clavé “s'adapta a usos més de participació”.

En aquest sentit, Fabré ha descrit com seran aquestes dues sales. “El teatre disposa de grades retràctils amb capacitat per 400 persones, que poden convertir-se amb una sala plana per acollir formats amb públic de peu amb capacitat per a 900 persones”. Pel que fa a la Sala Clavé, “aquesta va lligada al pati, amb llum natural, i es pot dividir en dos espais creant aules diferenciades”.
Als pisos superiors de l'edifici, que en total tindrà tres plantes, hi haurà els espais de les entitats, i al tercer, l'espai d'assaig i camerinos per als artistes. “Hem donat molta importància a la polivalència de l'espai”. I és que com ha explicat Fabré, “a l'hora de definir el nou edifici, vam entendre que com a entitat cultural era importantíssima per a la ciutat, i que l'arrelament a la ciutat és bàsic, així com el seu emplaçament”.
Per la seva banda, l'arquitecte Lluís Dilmé ha explicat que l'edifici s'ha pensat seguint criteris de sostenibilitat. “Des de criteris d'estalvi energètic en aigua, amb aprofitament de les aigües pluvials, fins a estalvie energètic aïllant les façanes tèrmicament, entre d'altres mesures”.
El calendari de les obres

Com ha explicat Damià Calvet, tinent d'alcalde d'Urbanisme, durant la presentació del projecte de La Unió, “la presentació d'aquest projecte és la culminació del moment inicial del procés de rehabilitació de La Unió, que ja té un llarg recorregut”.
Després de la presentació, Calvet ha explicat que “ara s'encarregarà al despatx d'arquitectes guanyador la redacció del projecte definitiu en un termini de 6 mesos, i posteriorment es licitaran les obres, que es preveu s'allarguin durant dos anys”.
El pressupost és de 3.000.000 aproximadament. Una xifra orientativa a l'espera de la redacció del projecte executiu per part de Dilmé Fabré Torras i Associats.
Un projecte de ciutat

Mercè Conesa, alcaldessa de Sant Cugat, ha destacat la importància del projecte que avui es presentava per a la ciutat, destacant que és un equipament per a tota la ciutat. Un tret que també ha posat en valor Carmela Fortuny, tinent d'alcalde de Cultura, tot dient que la ciutat “aposta per una cultura inclusiva, i que tant el tarannà de La Unió com a entitat i com a projecte, són enriquidors per a la ciutat”.
Per la seva banda, el president de La Unió, David Pujol, ha remarcat que “les coses s'estan fent bé”, i ha agraït la determinació de l'alcaldessa per tirar endavant aquest projecte.
Subscriu-te al butlletí
Facebook
X
Instagram
YouTube
WhatsApp
Telegram
TikTok